
项目位于利马南部的拉斯帕尔马斯俱乐部里,单面临着博内尔岛街。委托的设计包括为客户及其家人设计季节性海滨别墅,并利用地形为儿童和客人设计舒适地容纳小家庭的空间。

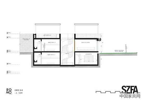
解决方案简单并且强调功能性,最大化利用空间而不牺牲照明和通风。房屋有6间自然采光的卧室,光线通过一个大的中央庭院照进来,院子是流通的核心。设计和住宅理念也旨在最大化社交和会议区域,其作为室内外之间的空间,在房屋不同功能区之间扮演过渡空间。


过梁强调了入口空间,并且支撑起有顶的空间框架:如客厅、厨房和客卫。混凝土格栅和木材用作缓冲,来给房屋提供不同程度的相对街道的私密。


楼前区域作为进入私人卧室区和二楼露台的前奏。在露台区域,朝向前面的部分、开放式客厅和主餐厅使得视野靠近街道立面。在楼的背面,泳池和烧烤区位于阳台旁更私密的位置,可以欣赏大海和周围环境。



社交区域的分布能容纳一个大家庭,接待不同的团体和聚会,因为空间功能是半独立的。但是,露台作为这个海滨别墅的特点,变成了房子的社交环境,通过一座桥梁将两个楼连接在同一水平,能让人欣赏风景。



使用的材料有露石混凝土、抛光混凝土、水磨石和马赛克,力图将房屋装饰成半乡村的氛围,突出一些对比的元素,如楼梯、木工及家具,这些元素给房屋设计带来当代特色。




建筑设计: Romo Arquitectos
项目位置: 秘鲁 Asia District 
主建筑师: Lorena Rotalde, José Monteverde
项目面积: 178.0平方米
项目时间: 2015年
摄    影: Renzo Rebagliati Fotografía
合作: Roberto Sevilla, Pablo Basto
结构: Pablo Basto


 
  



